
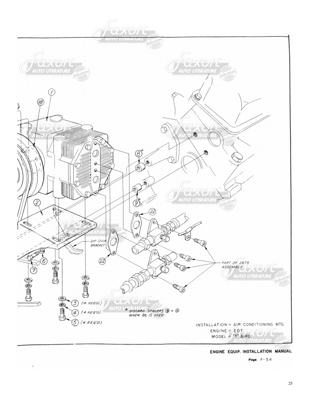
This reprinted manual gives you assembly illustrations for attaching parts to your engine, including bolt, bracket, and pulley placement. It does NOT show internal engine parts (pistons, for example). Use this manual to help you add or remove engine equipment, and/or to help identify parts that may be missing or incorrect. If you want to add an accessory such as air conditioning, you need this manual to show you what the necessary parts are and how to bolt them onto your engine. You will find illustrations for installing fuel lines, fuel pump, air cleaner, air conditioning compressor, belt pulleys, generator, alternator, power steering, windshield washer road draft tube, air ride, and more. The book shows exploded views of these parts and includes original part numbers. There are illustrations on just about every one of the book's pages. Like all assembly manuals, this is reproduced from a book made for use inside the factory, and never intended for the public. Therefore, the print (like the print in original assembly manuals) is occasionally light. Some of the print in this book is small. Each page has a watermark in the background (see example images). New condition. Go on and tear that Ford apart! This book will help you put it back together.
Ford
1959 Ford Car Engine Equipment Assembly Manual
58
Sold Separately
This item is a reproduction
13.50 x 8.25 x 0.25 inches
You can be the first one to write a review.