
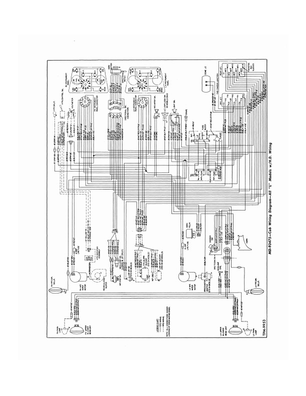
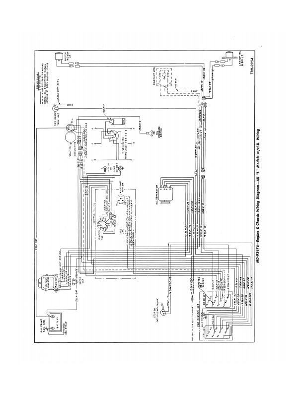
This is a quality reprint of the supplement that your GMC dealer would have used to work on your truck. It contains service, maintenance, and repair information on all truck models 1000 through 5000 built after September 4, 1962. You will find step-by-step illustrated repair procedures for front suspension, rear axle, body, brakes, clutch, cooling, electrical, engine, sheet metal, frame, fuel, lubrication, springs, steering, transmission, propeller shaft, hubs, wheels, and tires. Diagrammed illustrations, cutaway and exploded views, wiring schematics, and specifications will guide you smoothly through the text. This book contains supplemental information on those features new to 63 GMC trucks -- the supplement will refer you back to the 1962 Truck shop manual for much of the information. For complete repair instructions, use this manual in conjunction with the 1962 GMC Truck shop manual (see my other items). This is the only way that GMC made a shop manual for 63 pickups. Buy now to own the best manual for your truck.
GMC
"GMC Maintenance Manual Supplement Models 1000-5000"
199
Included
This item is a reproduction
11.00 x 8.50 x 0.50 inches
X6323 REPRINT
You can be the first one to write a review.
