
This book is a reproduction of a manual originally used by workers on the factory assembly lines putting cars together. You'll see page after page of detailed illustrations of how each part fits others. Use the part numbers and illustrations to help you verify original parts, to reassemble parts you are restoring, or to replace missing parts. You’ll find detailed parts illustrations and torque specs you haven’t seen anywhere else.
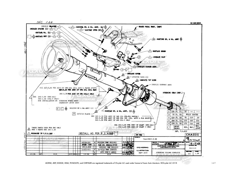
This chassis manual includes transmission and clutch housing, clutch pedal and linkage, steering gear and linkage, shifter and linkage, steering column, suspension, brakes, brake pedals and linkage, brake lines, parking brake, exhaust system, cruise control, and bumpers.
This manual gives you assembly illustrations for attaching parts to your engine, including hoses, belts, lines, linkages, and mounts. It does NOT show internal engine parts (pistons, for example). You will find illustrations for assembly of carburetor (shows carburetor installation, but not internal carburetor parts), fuel lines, vacuum lines, throttle linkage (including adjustment instructions), air pump, fan and drive, engine mounts/supports, and starter. The book shows exploded views of these parts and includes original part numbers.
Please see the sample page image. All pages are watermarked with a background image like the sample page. There are exploded views and illustrations on just about every one of the book's pages. New condition. Buy now to own this hard-to-find manual.
