
Available to the public for the first time, this assembly manual is unlike anything you've ever seen. You'll see page after page of detailed illustrations of how each body part fits others; this is a reproduction of information that was originally used by workers on the factory assembly lines putting SUVs together. Use the part numbers and illustrations to help you verify original parts, to reassemble parts you are restoring, or to replace missing parts. You’ll find detailed parts illustrations and torque specs you haven’t seen anywhere else. This reprinted body manual has two sections:
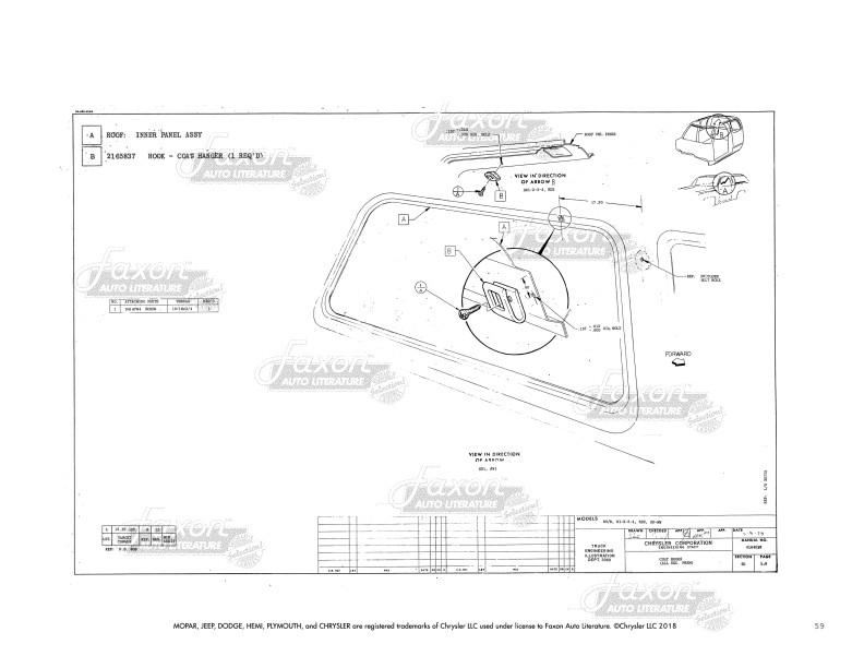
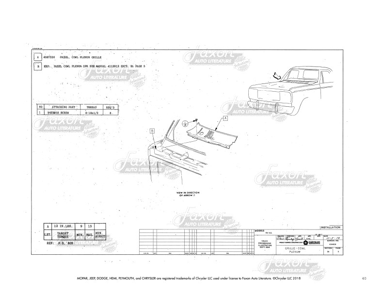
1980 Body Installation Instructions: Find out how to install glass, hood, and tailgate; assemble doors, locks, and window regulators; stow the jack, and put in the spare tire carrier (inside or outside). Interior assembly includes the headliner, seats, seat belts, interior transmission cover, carpet, cowl air vent, and visors. You'll see specifications for applying side moulding, chrome trim, chrome lettering, stripes, decals, two-tone paint, and weatherstripping. You'll see gap tolerances for the front end, doors, windshield, and tailagate.
1979 Welding: Learn how metal body parts are welded together. It’s helpful for hidden welds holding up parts you might need to remove and replace. If you’re replacing parts due to rust, you’ll find out how to replace mounting parts that have rusted away. This is particularly useful if the vehicle has damage from a wreck. It even includes a separate section devoted to seat springs. You'll see welding for the underbody, cowl, pillars, quarter panels, roof panels, rollbar, radiator and grill supports, seat mounts, and seat belt mounts.
Like all assembly manuals, this is reproduced from a book made for use inside the factory, and never intended for the public. The print quality is pretty good, but some of the lettering is very small. Buy now to own this never before available book. More assembly manuals coming soon.
Please see the sample page image. All pages are watermarked with a background image like the sample page. There are exploded views and illustrations on just about every one of the book's pages. New condition. Buy now to own this hard-to-find manual.