
This book is a reproduction of a manual originally used by workers on the factory assembly lines putting cars together. You'll see page after page of detailed illustrations of how each part fits others. Use the part numbers and illustrations to help you verify original parts, to reassemble parts you are restoring, or to replace missing parts. You’ll find detailed parts illustrations and torque specs you haven’t seen anywhere else.
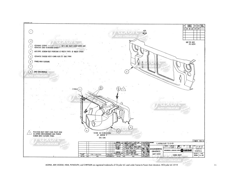
This reprinted manual gives you assembly illustrations for attaching parts to your engine, including hoses, belts, lines, linkages, and mounts. It does NOT show internal engine parts (pistons, for example). Use this manual to help you add or remove engine equipment, and/or to help identify parts that may be missing or incorrect. You will find illustrations for assembly of:
- carburetor (shows carburetor installation, but not internal carburetor parts),
- fuel pump,
- air cleaner
- fuel lines
- vacuum lines
- throttle controls & adjustment
- accelerator pedal
- radiator
- fan
- radiator hoses
- alternator drive
- air conditioning compressor
- air pump
- aspirator
- engine mounts
- starter
- ignition cables
- power steering hoses
- oil filter
- engine vent system
- EGR system
- torque plate & convertor
- transmission (shows how the transmission is mounted in the car, but not the inside of the transmission)
- drive shafts
- gearshift controls
- clutch pedal and linkage
- exhaust system
- fuel tank
- heat shields
- speed control
- engine block heater
The book shows exploded views of these parts and includes original part numbers. There are illustrations on just about every one of the book's 161 pages. This 8.5 x 11 inch is in new condition. Buy now to own this information you won’t find anywhere else.
 
                         
                 
                     
                     
                     
                     
                     
                     
                     
                                     
                                     
                                     
                                     
                                     
                                     
                                     
                                     
                                     
                                     
                                    