
Available to the public for the first time, this assembly manual is unlike anything you've ever seen. You'll see page after page of detailed illustrations of how each body part fits others; this is a reproduction of the book that was originally used by workers on the factory assembly lines putting cars together. Use the part numbers and illustrations to help you verify original parts, to reassemble parts you are restoring, or to replace missing parts. You’ll find detailed parts illustrations and torque specs you haven’t seen anywhere else. This reprinted body and electrical manual covers these topics:
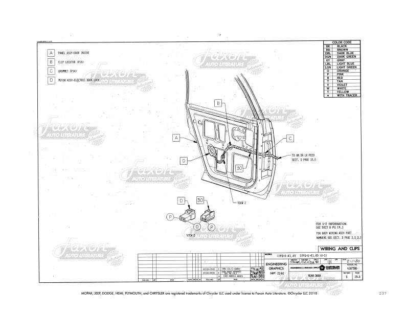
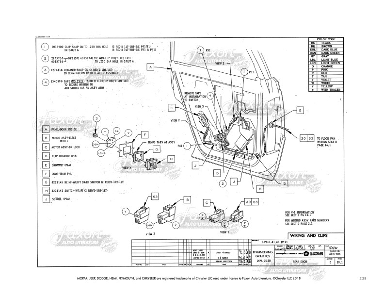
Wiring & Clips: Instead of conventional linear wiring diagrams, you get dimensional drawings of the wire routing plus pictures of the looms so that you can see exactly where the wires are situated in the car, where clips & connectors go, and what they look like. Includes color codes for wires. It includes images of the back side of the dash and instruments, as well as the wiring for both mechanical and body parts of the vehicle. Some of the topics covered include wipers, lights, power windows, power locks, radio, speakers, antenna, chassis, engine compartment, and more.
Openings & Closures: Tolerances for door openings as well as front end and grille body panels. Illustrations of the gaps with acceptable measurements.
Chassis: engine mounts, EGR system, throttle control adjustment, carburetor, power steering hoses, steering gear, steering linkage, steering column, steering wheel, suspension, wheels, and brakes (booster, vacuum hoses, pedal, lines, and parking brake).
Deadeners and Silencers: See how to install sound deadeners for the dash, doors, hood, trunk, roof, fenders, rear quarter, and floor. Some are panels and some are sprayed or squeezed fluid deadeners.
Plugs, Gaskets, and Rubber Parts: You get part numbers for rubber parts to install body parts. See illustrations of exact locations and instructions for applying rubber parts and gaskets to hood, dash, roof, underbody plugs, wheelhouse, and trunk.
Sealer, Solder, & Braze: hood silencer, dash liner, floor pan cover, and wheelhouse.
Weatherstrip & Cementing: Make your car watertight and sound proof by applying weatherstripping and sealants to windows, doors, and trunk.
Welding: Learn how metal body parts are welded together. It’s helpful for hidden welds holding up parts you might need to remove and replace. If you’re replacing parts due to rust, you’ll find out how to replace mounting parts that have rusted away This is particularly useful if the car has damage from a wreck.
Anti-corrosion: Shows areas to be primed and sealed.
Paint: Illustrates areas that are to be painted with each type of paint, including inside the engine compartment. It defines which areas are to be painted with interior vs. exterior colors. You’ll also see diagrams for the application of stripes with measurements for placement, woodgrain overlay, as well as two tones.
Lubrication: Find out how to prevent squeaks with illustrated instructions for lubricating hinges, locks, window regulators, and console.
Instructions: Find out how to install glass garnish moldings and wipers, stow the jack, install the headliner and luggage rack, add seat belts, apply a vinyl roof, install seat belts, and add a few small parts.
1981 Seats: Upholstery.
Heating & Air Conditioning: Find out how to install front and rear heaters, defroster, defogger, vents, and air conditioner. Includes ducts, plumbing, and controls.
Torque: Lists part numbers for screws, nuts, and attaching hardware, showing where they are installed and torque values for applying them to fenders, grille, hood, dash, seat adjusters, doors, quarter panels, and trunk.
Please see the sample page image. All pages are watermarked with a background image like the sample page. There are exploded views and illustrations on just about every one of the book's pages. New condition. Buy now to own this never before available book. More assembly manuals coming soon.
Like all assembly manuals, this is reproduced from a book made for use inside the factory, and never intended for the public. Therefore, the print (like the print in original assembly manuals) is occasionally light and sometimes small. Buy now to own this never before available book.
