
Available to the public for the first time, this assembly manual is unlike anything you've ever seen. You'll see page after page of detailed illustrations of how each body part fits others; this is a reproduction of the book that was originally used by workers on the factory assembly lines putting cars together. Use the part numbers and illustrations to help you verify original parts, to reassemble parts you are restoring, or to replace missing parts. You’ll find detailed parts illustrations and torque specs you haven’t seen anywhere else. This reprinted body manual covers these topics:
- Wiring clips: shows clips that hold the wiring.
- Torque: Lists part numbers for screws, nuts, and attaching hardware, showing where they are installed and torque values for applying them to fenders, grille, hood, dash, seat adjusters, doors, quarter panels, convertible top well, and trunk.
- Anti-corrosion: Shows areas to be primed and sealed.
- Openings & Closures: Tolerances for door and trunk openings. Illustrations of the gaps with acceptible measurements.
- Weatherstrip & Cementing: Make your car watertight and sound proof by applying weatherstripping and sealants to windows, doors, convertible top well, and trunk.
- Sealer, Solder, & Braze: Apply solder, tapes, and liquid sealants to fenders, dash, cowl, pillars, underbody, roof rails, quarter panels, glass channels, convertible top well, doors, and trunk.
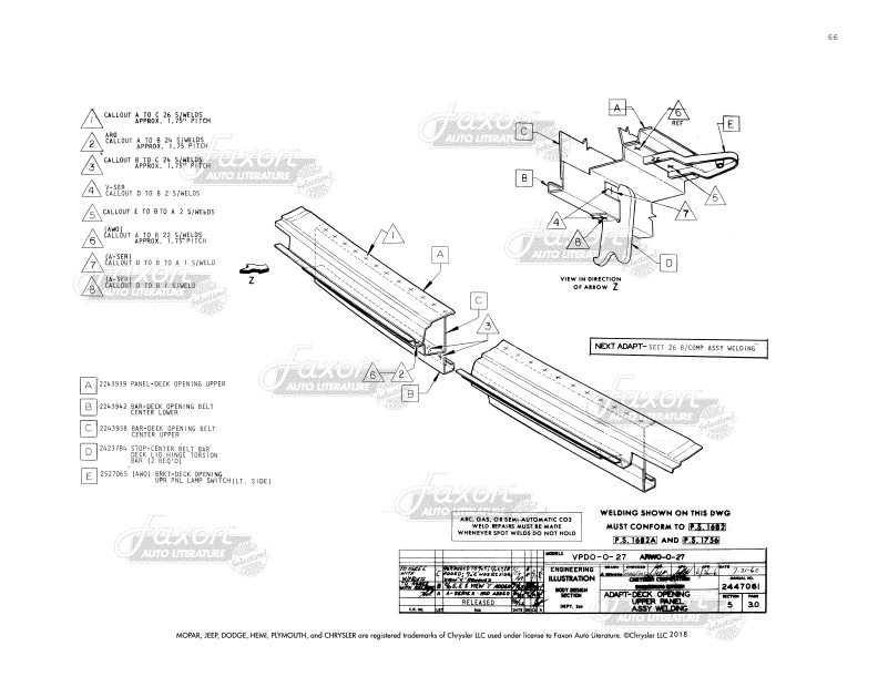
- Welding: Learn how metal body parts are welded together. It’s helpful for hidden welds holding up parts you might need to remove and replace. If you’re replacing parts due to rust, you’ll find out how to replace mounting parts that have rusted away This is particularly useful if the car has damage from a wreck. It even includes a separate section devoted to seat springs.
- Deadeners and Silencers: See how to install sound deadeners for the dash, doors, hood, trunk, roof, fenders, rear quarter, and floor. Some are panels and some are sprayed or squeezed fluid deadeners.
- Lubrication: Find out how to prevent squeaks with illustrated instructions for lubricating hinges, locks, window regulators, convertible top, and console.
- Paint: Illustrates areas that are to be painted with each type of paint, including inside the engine compartment. It defines which areas are to be painted with interior vs. exterior colors. Find out the exact color placement for two-tones. You’ll also see diagrams for the application of stripes with measurements for placement.
- Plugs, Gaskets, and Rubber Parts: You get part numbers for rubber parts to install body parts. See illustrations of exact locations and instructions for applying rubber parts and gaskets to hood, antenna, dash, underbody plugs, quarter panel, trunk, a d convertible top well and header.
- Instructions: Find out how to install glass garnish moldings, stow the jack, install the headliner, add seat belts, apply a vinyl roof, and add a few small parts.
Like all assembly manuals, this is reproduced from a book made for use inside the factory, and never intended for the public. Therefore, the print (like the print in original assembly manuals) is occasionally light. There are a handful of spots in the book where some of the words are unreadable. Buy now to own this never before available book. More assembly manuals coming soon.
Please see the sample page image. All pages are watermarked with a background image like the sample page. There are exploded views and illustrations on just about every one of the book's pages. New condition. Buy now to own this hard-to-find manual.