
Available to the public for the first time, this assembly manual is unlike anything you've ever seen. You'll see page after page of detailed illustrations of how each body part fits others; this is a reproduction of the book that was originally used by workers on the factory assembly lines putting trucks together. Use the part numbers and illustrations to help you verify original parts, to reassemble parts you are restoring, or to replace missing parts. You’ll find detailed parts illustrations and torque specs you haven’t seen anywhere else. This reprinted manual covers these topics:
Electrical: Instead of conventional linear wiring diagrams, you get dimensional drawings of the wire routing plus pictures of the looms so that you can see exactly where the wires are situated in the van, where clips & connectors go, and what they look like. Includes color codes for wires. It includes images of the back side of the dash and instruments, as well as the wiring for both mechanical and body parts of the van. Some of the topics covered include wipers, lights, fuse block, power windows, power locks, steering column, radio, speakers, chassis, engine compartment, transmission, starter, and more.
Heater and Air Conditioning: Find out how to install heater, vents, and air conditioner. Includes controls, ducts, plumbing, and outlets.
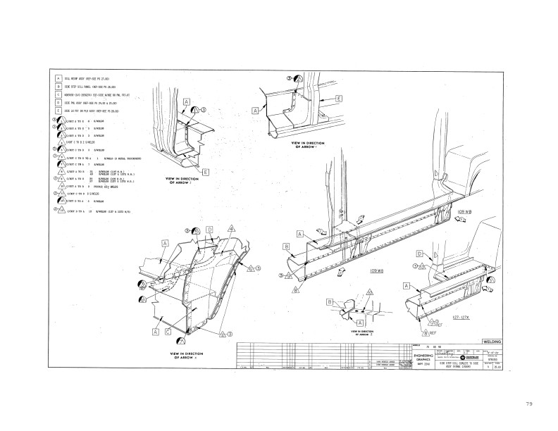
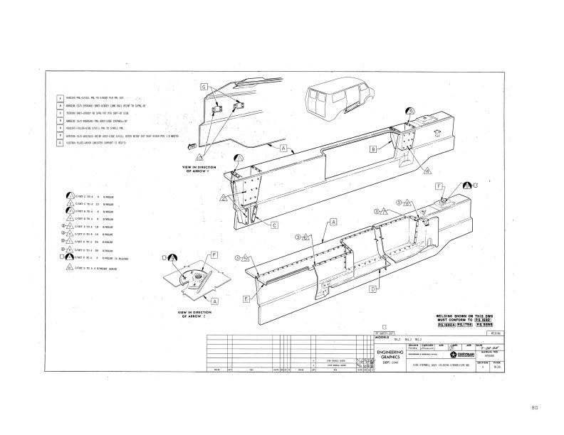
Welding: Learn how metal body parts are welded together. It’s helpful for hidden welds holding up parts you might need to remove and replace. If you’re replacing parts due to rust, you’ll find out how to replace mounting parts that have rusted away. This is particularly useful if the vehicle has damage from a wreck. You'll see welding for the underbody, floor pan, cowl, pillars, roof panels, side panels, doors, side sills, and fenders.
Anti-corrosion: Shows areas to be primed and sealed.
Paint: Shows two-tone schemes and engine compartment areas to be painted.
Sealer: seal the windshield, cowl, underbody, seat brackets, hole covers, doors, lower sill, sides, wheelhouse, rear seal, dash, and roof against wind and water leaks.
Body Installation Instructions: Find out how to install glass, hood, and mirrors; assemble doors, locks, handles, weatherstripping, and hinges; stow the jack, and put in the spare tire carrier. Interior assembly includes the headliner, seats, seat belts, arm rests, console, carpet, insulation, interior trim, glove box, dash, steering column, and visors. You'll see specifications for applying side moulding, chrome trim, chrome lettering, stripes, and weatherstripping. Includes installation of radiator, grille, bumpers, and antenna. You'll see gap tolerances for doors and windshield.
Please see the sample page image. All pages are watermarked with a background image like the sample page. There are exploded views and illustrations on just about every one of the book's pages. New condition. Buy now to own this hard-to-find manual.
